Header

KATALOG RODINNÝCH DOMŮ, ATYPICKÉ DOMY A NOVÉ PROJEKTY

Všechny projekty domů obsahují náležitosti požadované Vyhláškou 499/2006 Sb. o dokumentaci staveb v požadovaném a nutném stupni projektové dokumentace. V projektové dokumentaco typových projektů je možné po projednání provádět úpravy a změny.

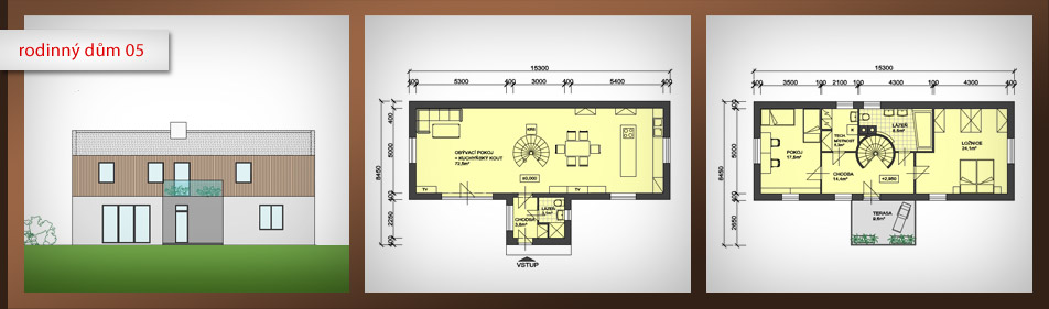
Domy označené 1-8 jsou disposičně navrženy nad obvyklý tuzemský standard. Ceny domů dle zvoleného standardu materiálů a vybavení domů 4,7 - 8,2 tis Kč/m 3 OP.

Domy označené I-IV se sedlovými střechami s vysokou využitelností v obvyklém standardu. Ceny domů dle zvoleného standardu materiálů a vybavení domů 4,2-7,2 tis Kč/m 3 OP.

V případě Vašeho zájmu a potřeby vám vyprojektujeme nový dům.

Rodinný dům 01 Rodinný dům 02 Rodinný dům 03 Rodinný dům 04 Rodinný dům 05 Rodinný dům 06 Rodinný dům 07 Rodinný dům 08 Rodinný dům 0I Rodinný dům II Rodinný dům III Rodinný dům IV
Kontaktní formulář