- Dům s vysokým komfortem bydlení .
- V 1. PP garáž pro 2 vozy, možno rozšířit na 2 + 2. Při neprovedeném 1. PP parkování mimo dům.
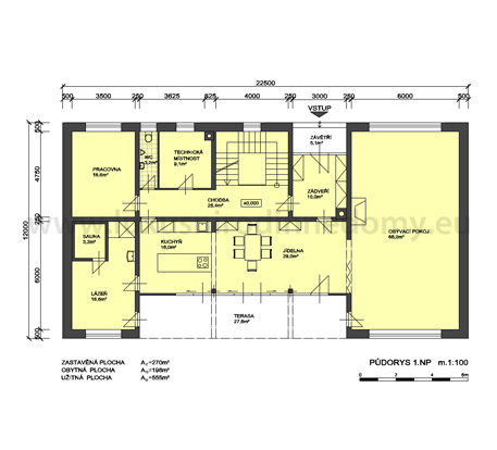
- V 1. NP zázemí,sauna a obytná část domu s přímým výstupem do zahrady.
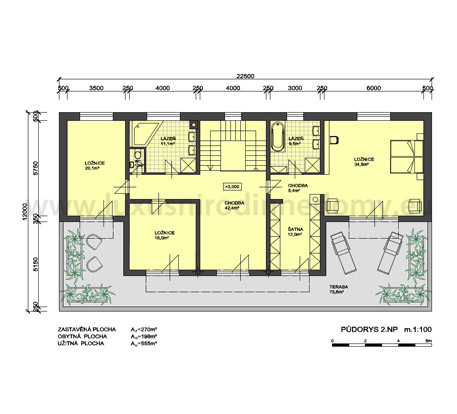
- V 2. NP pokoje, ložnice,terasa orientovaná do zahrady.






