Header

RODINNÝ DŮM I (6 VARIANT)
VARIANTY A 1, 2; B 1, 2; C 1, 2

  • Dům s vyšším komfortem bydlení v 6 –ti variantách návrhu s valbovou střechou.
  • V 1.NP zázemí a obytná část domu s přímým výstupem do zahrady u všech variant.
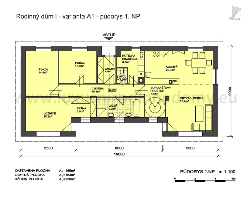
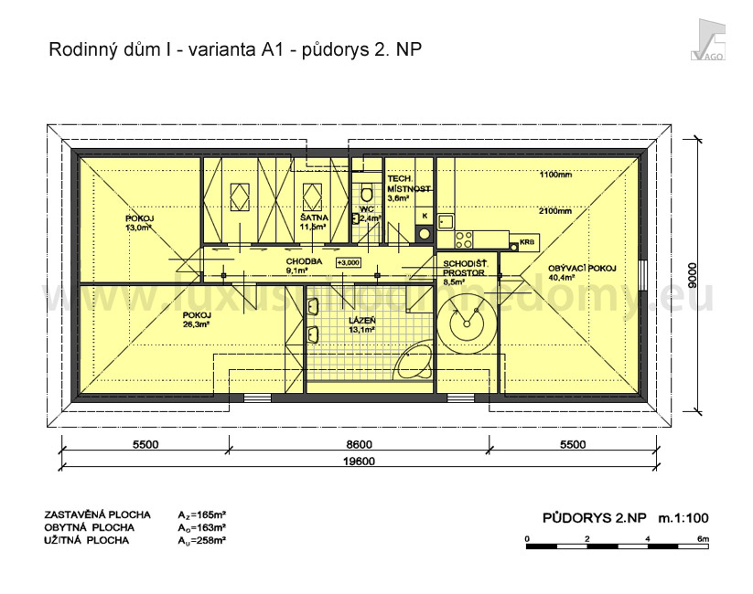
  • Varianta A1

  • 2. NP pokoje,střecha s vikýři. Nekryté parkovací stání u štítu domu.

Zastavěná plocha: 165 m²
Užitná plocha: 258 m²
Obytná plocha: 163 m²
Obestavěný prostor /OP/: 1089 m³

Půdorys 1. NP

Rodinný dům I

Půdorys 2. NP

Rodinný dům I

Jižní pohled

Rodinný dům I

Východní pohled

Rodinný dům I

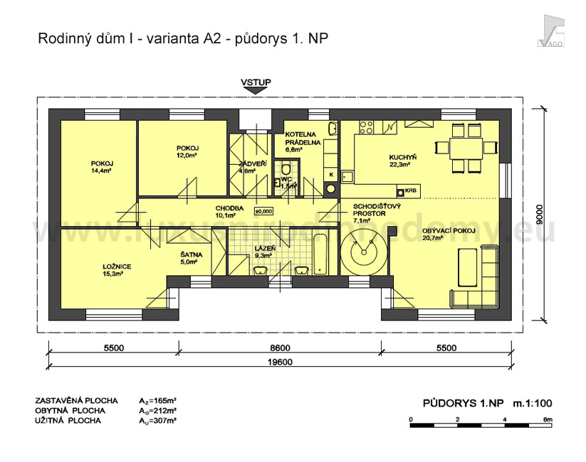
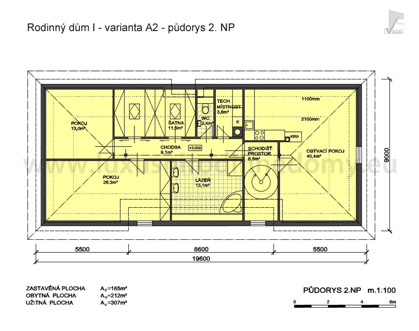
Varianta A2

  • 2. NP pokoje,střecha s vikýři. Nekryté parkovací stání u štítu domu. Dům rozšířen o 1.PP s obytným prostorem 42,8 m², využitelným jako samostatné bydlení s výstupem do zahrady.

Zastavěná plocha: 165 m²
Užitná plocha: 307 m²
Obytná plocha: 212 m²
Obestavěný prostor /OP/: 1298 m³

Půdorys 1. PP

Rodinný dům I

Půdorys 1. NP

Rodinný dům I

Půdorys 2. NP

Rodinný dům I

Jižní pohled

Rodinný dům I

Východní pohled

Rodinný dům I

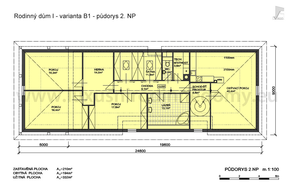
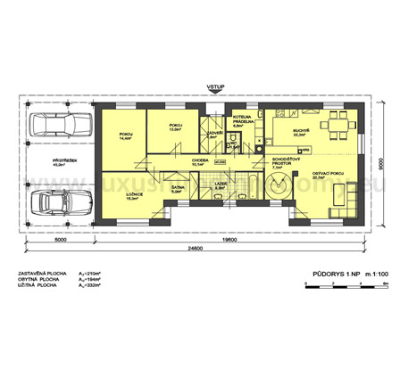
Varianta B1

  • 2. NP pokoje,střecha s vikýři. Kryté 3 parkovací stání protažením střechy u štítu domu.

Zastavěná plocha: 210 m²
Užitná plocha: 332 m²
Obytná plocha: 194 m²
Obestavěný prostor /OP/: 1386 m³

Půdorys 1. NP

Rodinný dům I

Půdorys 2. NP

Rodinný dům I

Jižní pohled

Rodinný dům I

Východní pohled

Rodinný dům I

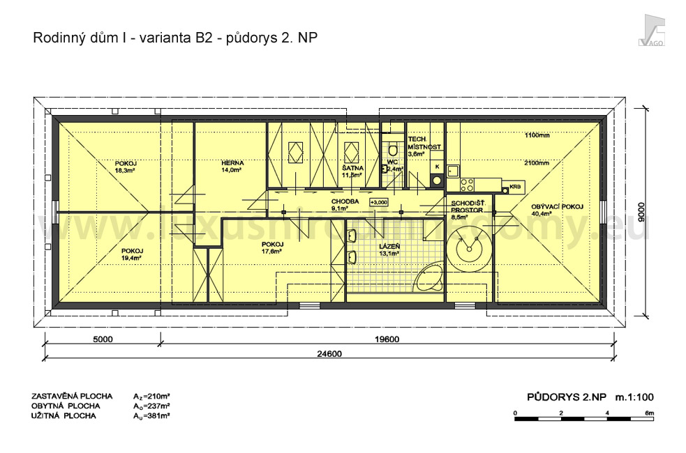
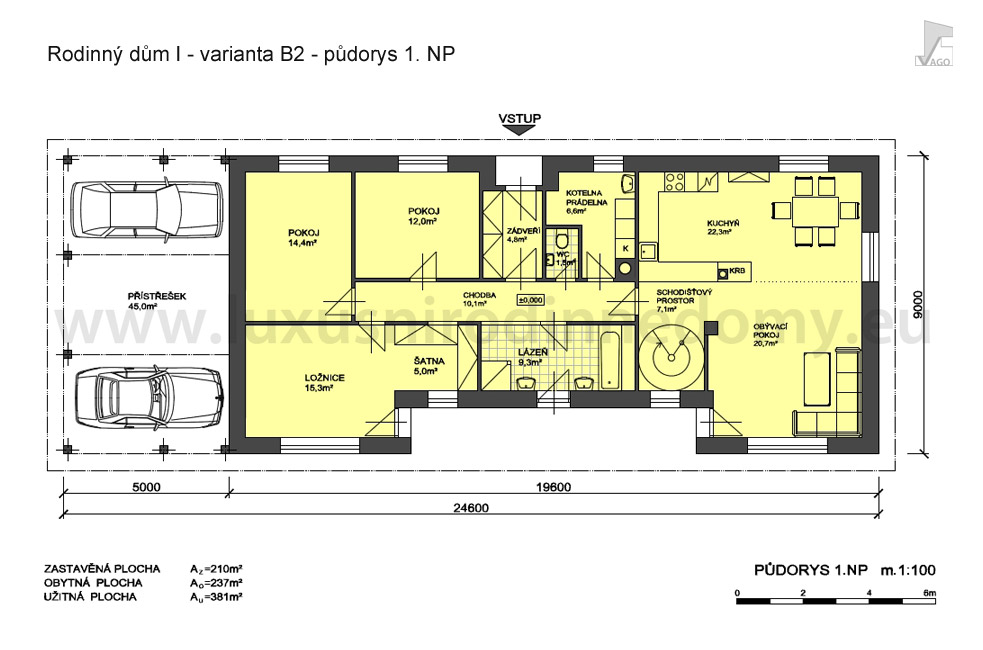
Varianta B2

  • 2. NP pokoje,střecha s vikýři. Kryté 3 parkovací stání protažením střechy u štítu domu. Dům rozšířen o 1. PP s obytným prostorem 42,8 m², využitelným jako samostatné bydlení s výstupem do zahrady.

Zastavěná plocha: 210 m²
Užitná plocha: 381 m²
Obytná plocha: 237 m²
Obestavěný prostor /OP/: 1595 m³

Půdorys 1. PP

Rodinný dům I

Půdorys 1. NP

Rodinný dům I

Půdorys 2. NP

Rodinný dům I

Jižní pohled

Rodinný dům I

Východní pohled

Rodinný dům I

Varianta C1

  • Nízká valbová střecha, nekryté parkovací stání v štítu domu.

Zastavěná plocha: 165 m²
Užitná plocha: 130 m²
Obytná plocha: 93 m²
Obestavěný prostor /OP/: 842 m³

Půdorys 1. NP

Rodinný dům I

Jižní pohled

Rodinný dům I

Východní pohled

Rodinný dům I

Varianta C2

  • Nízká valbová střecha, kryté 3 parkovací stání v štítu domu.

Zastavěná plocha: 210 m²
Užitná plocha: 175 m²
Obytná plocha: 93 m²
Obestavěný prostor /OP/: 1071 m³

Půdorys 1. NP

Rodinný dům I

Jižní pohled

Rodinný dům I

Východní pohled

Rodinný dům I