Header

RODINNÝ DŮM 03

Rodinný dům 03
  • Dům s vysokým komfortem bydlení .
  • V 1. NP zázemí a obytná část domu s přímým výstupem do zahrady.
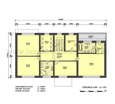
  • V 2. NP pokoje, ložnice.
  • V ustupujícím 3. NP sauna se zázemím, fitness, zimní zahrada s bazénem, 2 samostatné terasy.
  • Garáž pro 2 vozy v domě.
Zastavěná plocha: 215 m²
Užitná plocha: 552 m²
Obytná plocha: 199 m²
Obestavěný prostor /OP/: 1879 m³
Rodinný dům 03

Rodinný dům 03

Půdorys 1. NP

Rodinný dům 03

Půdorys 2. NP

Rodinný dům 03

Půdorys 3. NP

Rodinný dům 03

Jižní pohled

Rodinný dům 03

Severní pohled

Rodinný dům 03

Západní pohled

Rodinný dům 03

Východní pohled

Rodinný dům 03