- Dům s vyšším komfortem bydlení.
- V 1.NP obytná část domu s přímým výstupem do zahrady, zázemí a sauna.
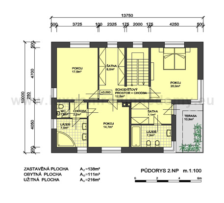
- V 2.NP pokoje,ložnice, terasa se slunolamem.
- Garáž pro 2 vozy přilehlá k domu ve 2 variantách jejího umístění. V tomto prostoru možno provést namísto garáže bazén, anebo rozšířit obytnou část.garážování lze řešit odděleně od domu






