Header

RODINNÝ DŮM II JIŽNÍ ČECHY

  • Dům s vyšším komfortem bydlení .
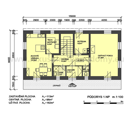
  • V 1. NP důsledně oddělený obývací pokoj od obytné kuchyně s výstupem do zahrady, zápraží, zázemí vhodné na topení dřevem.
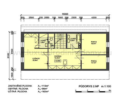
  • V 2. NP pokoje, na přání vikýř v chodbě v ose domu, pohodlné 2 ramenné schodiště.
  • Parkování mimo disposici domu. Sedlová střecha sklon 45° s nadstřešní atikou.
Zastavěná plocha: 113 m²
Užitná plocha: 162 m²
Obytná plocha: 96 m²
Obestavěný prostor /OP/: 778 m³

RODINNÝ DŮM II

Půdorys 1. NP

Rodinný dům II

Půdorys 2. NP

Rodinný dům II

Jižní pohled

Rodinný dům II

Severní pohled

Rodinný dům II

Západní pohled

Rodinný dům II

Východní pohled

Rodinný dům II