Header

RODINNÝ DŮM 05

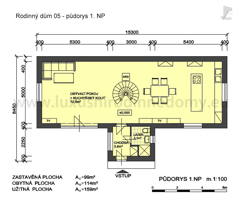
  • Dům s vyšším komfortem bydlení pro 2-3 osoby.
  • V 1. NP obytná část domu s přímým výstupem do zahrady.
  • V 2. NP pokoje, zázemí, terasa.
  • Parkování mimo disposici domu.
Zastavěná plocha: 99 m²
Užitná plocha: 159 m²
Obytná plocha: 114 m²
Obestavěný prostor /OP/: 658 m³

Rodinný dům 02

Půdorys 1. NP

Rodinný dům 05

Půdorys 2. NP

Rodinný dům 05

Jižní pohled

Rodinný dům 05

Východní pohled

Rodinný dům 05